Description
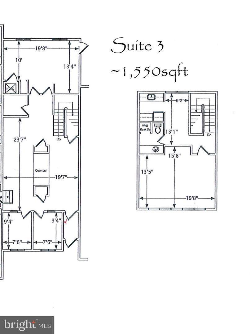
Buy 1 unit, or both! Unit 2 is listed under MLS ID NJGL2055144 and the units are listed as a package under MLS ID NJGL2051808. Key Features: 1,550 square feet of well-appointed medical office space, Located within a professionally managed office condo complex, Reception and waiting area with ample seating, Multiple private exam rooms and treatment areas, Modern HVAC and high-quality interior finishes, ADA-compliant accessibility, Ample parking for patients and staff, Prime location with easy access to major roadways and nearby amenities! Welcome to 100 Heritage Valley Dr, Unit 3, Washington Township, NJ 08080 " a prime medical office space offering 1,5550 square feet of versatile, professional-grade space within a well-established office condominium. Situated in a desirable location with excellent accessibility and visibility, this property is ideal for healthcare providers seeking a modern, functional environment to serve their patients. The space is thoughtfully designed with high-end finishes and ample room for a variety of medical specialties. It features a flexible floor plan with multiple private exam rooms, office suites, spacious waiting areas, and support spaces to accommodate both medical staff and clients. Large windows provide natural light, enhancing the comfort and atmosphere of the entire office. The unit is meticulously maintained, offering a clean, professional setting for any medical practice or related healthcare use. This medical office condo is an excellent opportunity for investors, medical practitioners, or healthcare groups looking for a high-profile location to expand or establish their practice. Contact us today to schedule a viewing and explore the potential of this impressive space.
-
0BEDS
-
N/AACRES
-
0BATHS
-
01/2 BATHS
School Information
Description
Buy 1 unit, or both! Unit 2 is listed under MLS ID NJGL2055144 and the units are listed as a package under MLS ID NJGL2051808. Key Features: 1,550 square feet of well-appointed medical office space, Located within a professionally managed office condo complex, Reception and waiting area with ample seating, Multiple private exam rooms and treatment areas, Modern HVAC and high-quality interior finishes, ADA-compliant accessibility, Ample parking for patients and staff, Prime location with easy access to major roadways and nearby amenities! Welcome to 100 Heritage Valley Dr, Unit 3, Washington Township, NJ 08080 " a prime medical office space offering 1,5550 square feet of versatile, professional-grade space within a well-established office condominium. Situated in a desirable location with excellent accessibility and visibility, this property is ideal for healthcare providers seeking a modern, functional environment to serve their patients. The space is thoughtfully designed with high-end finishes and ample room for a variety of medical specialties. It features a flexible floor plan with multiple private exam rooms, office suites, spacious waiting areas, and support spaces to accommodate both medical staff and clients. Large windows provide natural light, enhancing the comfort and atmosphere of the entire office. The unit is meticulously maintained, offering a clean, professional setting for any medical practice or related healthcare use. This medical office condo is an excellent opportunity for investors, medical practitioners, or healthcare groups looking for a high-profile location to expand or establish their practice. Contact us today to schedule a viewing and explore the potential of this impressive space.
©2025 Bright MLS, All Rights Reserved. IDX information is provided exclusively for consumers' personal, non-commercial use and may not be used for any purpose other than to identify prospective properties consumers may be interested in purchasing. Some properties which appear for sale may no longer be available because they are for instance, under contract, sold, or are no longer being offered for sale. Information is deemed reliable but is not guaranteed accurate by the MLS or eXp Realty LLC. Some real estate firms do not participate in IDX and their listings do not appear on this website. Some properties listed with participating firms do not appear on this website at the request of the seller. Data last updated: 2025-11-06T21:53:41.407.
