Description
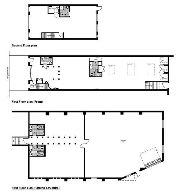
Full building for lease on a 25 x 200 ft lot for your business. 6,000 sq ft commercial building, ideally situated at 3218 Kennedy Blvd., in Jersey City Heights. This property boasts high ceilings and an open layout, offering a blank canvas to tailor the space to your specific needs. Suitable for office, professional, and retail uses. The high ceilings create an airy and spacious environment. Open space that you can customize to fit your business vision. Includes a separate garage at the rear, accommodating up to 10 cars. Convenient Location just 3/4 of a mile from Journal Square PATH Station, providing easy access to transportation. Located on a major road with high visibility.
-
0BEDS
-
N/AACRES
-
0BATHS
-
01/2 BATHS
-
6,000SQFT
-
$3$/SQFT
School Ratings & Info
Description
Full building for lease on a 25 x 200 ft lot for your business. 6,000 sq ft commercial building, ideally situated at 3218 Kennedy Blvd., in Jersey City Heights. This property boasts high ceilings and an open layout, offering a blank canvas to tailor the space to your specific needs. Suitable for office, professional, and retail uses. The high ceilings create an airy and spacious environment. Open space that you can customize to fit your business vision. Includes a separate garage at the rear, accommodating up to 10 cars. Convenient Location just 3/4 of a mile from Journal Square PATH Station, providing easy access to transportation. Located on a major road with high visibility.
© 2025 Hudson County Multiple Listing Service. All rights reserved. IDX information is provided exclusively for consumers' personal, non-commercial use and may not be used for any purpose other than to identify prospective properties consumers may be interested in purchasing. Information is deemed reliable but is not guaranteed accurate by the MLS or eXp Realty LLC.
The data relating to real estate for sale or lease on this web site comes in part from HCMLS. Real estate listings held by brokerage firms other than eXp Realty LLC are marked with the HCMLS logo or an abbreviated logo and detailed information about them includes the name of the listing broker.
Data last updated: 2025-11-11T14:25:37.703.